Home
About Us
Projects
Events
Rental
Register
Contacts
Our Projects |
Current Projects
|
Completed Projects
|
Past Projects
Current Projects
Main
|
Features
|
Location Map
|
Layout Plans
|
Facilities
|
Take A Tour
|
Amenities
|
Project Status
|
Video
|
Brochure
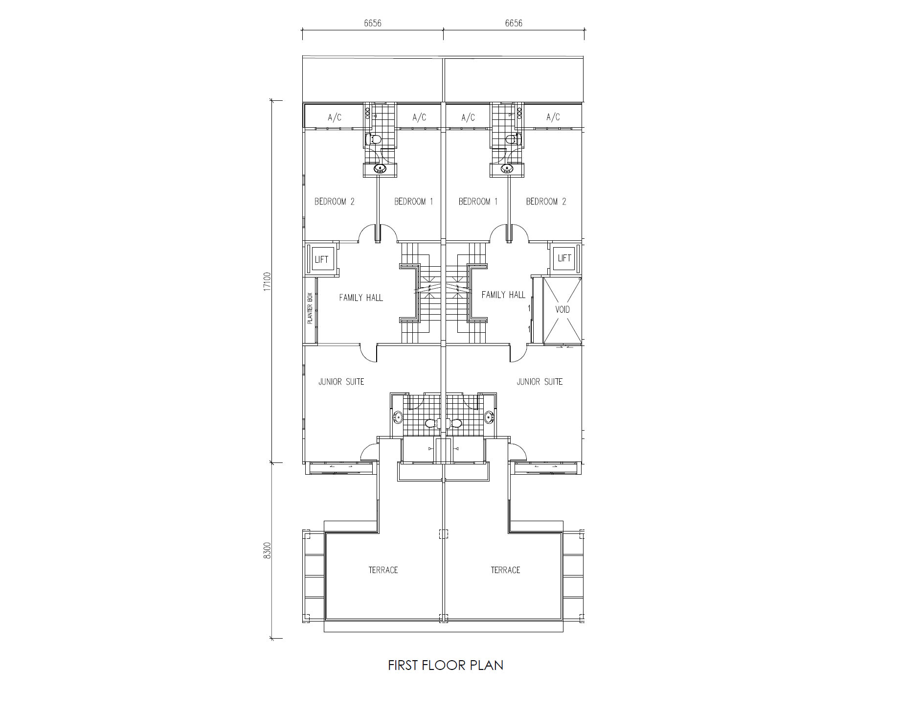
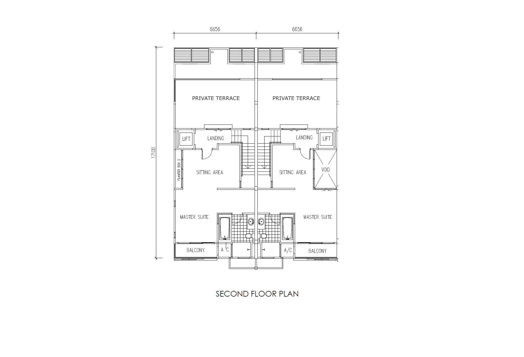
- Land size : approx. 22’ x 90’
- Built-up area : approx. 4,100 sq. ft.
- Freehold
- 5 + 1 bedrooms & 5 bathrooms
- Wet & dry kitchen
- Private back garden
- Internal courtyard (intermediate unit only)
- Wide & spacious car porch
- 2 open terraces
- High ceiling
- Home lift
Click photo to enlarge
Click photo to enlarge
Click photo to enlarge
Click photo to enlarge
Click photo to enlarge
Click photo to enlarge
Click photo to enlarge
Click photo to enlarge
Click photo to enlarge
Click photo to view
Click photo to enlarge
Click photo to watch video
Click photo to view / Right click for download